Projekt moderního rodinného domu
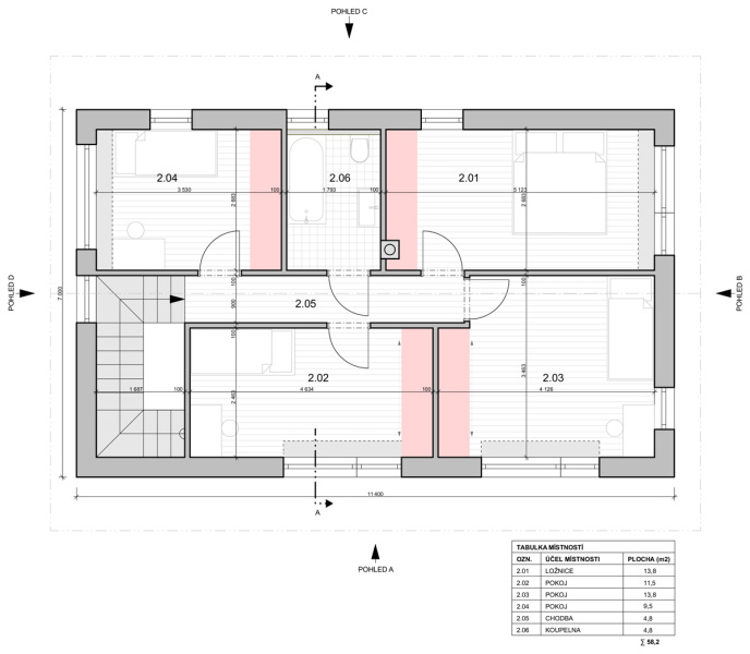
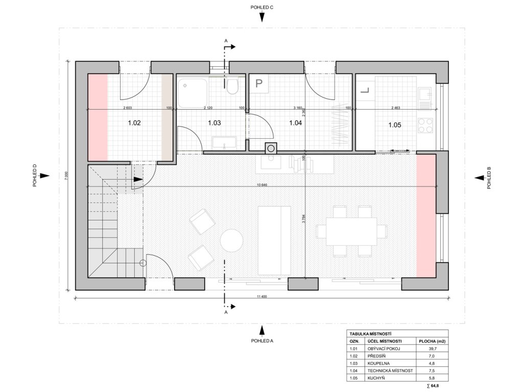
Moderní dvoupodlažní dům pro rodinu s dětmi o velikosti 5+1. Dům se čtyřmi ložnicemi, obytným prostorem, kuchyní, dvěma koupelnami, předsíní a technickou místností.
| Kategorie: | STAVEBNÍ PLÁNKY |
|---|
MODERNÍ DŮM PRO RODINU S DĚTMI
- Plocha místností: 123 m2
- Zastavěná: 80 m2
- Místnosti: 5+1
- Materiál: zděný

ELEKTRONICKÝ PROJEKT MODERNÍHO RODINNÉHO DOMU OBSAHUJE:
- Souhrnná technická zpráva a průvodní zpráva ve wordovém dokumentu. Stačí jen doplnit konkrétní údaje stavitele a místní specifika.
- Výkresy ve formátu A3. Stačí doplnit o údaje investora. Technické zprávy pro jednotlivé části jsou ve wordovém dokumentu, takže je také lze doplnit o jméno, adresu atd. a předat úřadu.
- Zpracováno podle platné vyhlášky o dokumentaci staveb (vyhláška č. 131/2004)
ELEKTRONICKÝ PROJEKT NEOBSAHUJE:
- Projekt není opatřen razítkem autorizované osoby! Porozhlédněte se po Vašem okolí, nebo se poptejte na stavebním úřadě, určitě nějakého seženete.
- Situační výkresy.
- Radonový test. Závislý na místních podmínkách. Na úřadu Vás již informují, zda je nutný.
- Energetický průkaz budovy. Závislý na místních podmínkách. Na úřadu Vás již informují, zda je nutný.
- Požárně bezpečnostní řešení. Závislý na místních podmínkách.
Moderní dvoupodlažní dům s čtyřmi ložnicemi, obytným prostorem, kuchyní, dvěma koupelnami, předsíní a technickou místností.
Základy jsou tvořeny jednoduchým systémem základových pasů pod nosnými stěnami. Nosné stěny jsou z vápenocementových dílců s venkovním zateplením. Tento typ konstrukce je standardním řešením nízkoenergetických domů. Klasická hambalková krovová soustava umožňující využití obytného podkroví.
Projekt je zpracován tak, aby bylo dosaženo maximální ekonomičnosti při výstavbě domu ať už svépomocí, či pomocí stavební firmy.
Projekt s výkresy a technickými zprávami je zaslán ve formátu .pdf a .doc v elektronické podobě.
Jak postupovat při stavbě rodinného domu?
Jak efektivně snížit náklady na stavbu domu?
Není pro Vás lepší investovat spíše do rekonstrukce, než novostavby?
Diskuze
Buďte první, kdo napíše příspěvek k této položce.











